Fastighetsmäklare i Sigtuna Kommun sedan 1993
Besiktad
Dolda fel-försäkrad

Anemonstigen 3

Märsta
Sällsynt tillfälle i ett av Märstas mest populära områden! Större modell villa om 170 kvm boyta och total yta om 190 kvm som erbjuder stora ytor och därmed möjligheter. Sällsynt läge på mindre återvändsgata. Flera tyngre renoveringar har redan avklarats som dränering, tak, fiber, fönster, installation av två luft/luftvärmepumpar mm. Äldre men välhållna ytskikt inne vilket ger bra möjligheter att renovera och skapa ett boende i din egna stil. I dagsläget finns 5 rum och 3 sovrum, med möjlighet till fler sovrum. Mycket rymligt vardagsrum på övre plan med stora fönsterpartier och häftig utsikt på höjd mot horisont. Kök med plats för matbord. Två sovrum och badrum. Souterrängkällare med gillestuga, bastu, tvättstuga med dusch och förråd samt ett sovrum och möjlighet till ett till. Garage med förråd. Det populära Arenberga och Blåklintvägen är lugnt beläget med närhet till skolor som Norrbackaskolan och Sätunaskolan samt kort avstånd till Märsta Station med närservice. Det finns även flera alternativ till trevliga motions- och promenadstråk runt kringliggande naturområden. Nere vid Märsta Station finns en ny ICA-Butik på det nya torget. Huset har besiktats och säljaren har tecknat en dolda fel-försäkring.

Fakta

Typ
Friliggande villa
Rum
5 ROK
Sovrum
3
Boarea
170 KVM
Biarea
20 KVM
Fastighetsbeteckning
Arenberga 1:170
Tomtarea
779 KVM
Förbesiktad
Ja
Säljarförsäkring
Ja
Adress
Anemonstigen 3
Postnummer
19542
Ort
Märsta
Område
Märsta - Arenberga
Kommun
Sigtuna
  • Interiör
    Antal rum
    5 ROK
    Boarea + Biarea
    170 KVM + 20 KVM
    Hall/Allrum
    Entré till en stor hall/allrum. Här har enligt originalritningen tidigare varit ett sovrum i anslutning till hallen. Stor yta med flera möbleringsmöjligheter och en inbyggd garderob. Det inns även ett förråd under trappen. Ekparkett på golvet och ljusa tapeter på väggarna. Här sitter även en av de 2 luft/luftvärmepumparna.
    Sovrum 1
    Sovrum som är enkelt att möblera och med en inbyggd garderob. Matta på golvet och ljusa tapeter på väggarna.
    Gillestuga
    Stort utrymme med flera möbleringsmöjligheter och användningsområden. Ytskikten är inte helt färdigställda med träpanel delvis på tak och väggar, samt en målad tegelvägg.
    Bastu
    Nås från hallen och utanför bastun finns även ett utrymme som kan inredas eller användas för förvaring.
    Tvättstuga
    Tvättstuga med dusch. Klinkergolv och stor arbetsyta på bänkar samt mycket förvaring i flera skåp. Här finns en tvättho och tvättmaskin, torktumlare och mangel i äldre skick.
    Pannrum
    Pannrum som tidigare även använts som förråd. Klinkergolv.
    WC
    Nås från hall. Badrumsskåp med spegelluckor och belysning ovan. Handfat och WC.
    Vardagsrum, övre plan
    Från entréplanets trapp nås den häftiga övervåningen med stor yta fördelat på ett stort vardagsrum och matdel, samt en typ av hall eller allrum vid trappen. Nära trappen finns utgång till balkong. Vardagsrummet har stora fönsterpartier med häftig utsikt tack vare husets läge på höjd. Här finns flera möbleringsmöjligheter och en eldstad med insatskamin pryder väl sin plats i ett hörn. Från matdelen finns en utgång till uteplatsen. Ekparkett på golvet och ljusa tapeter på väggarna.
    Kök, övre plan
    Trivsamt kök med bra arbetsyta på lång köksbänk, samt bra förvaring i flera skåp och lådor. Utgång till uteplatsen. Här finns även plats för matgrupp, och från köket nås matdel och vardagsrum. Köket går i vitt med kakel ovan köksbänk samt matta på golvet och ljusa tapeter. Här finns diskmaskin, ugn med spishäll, fläkt och kyl och frys i fullhöjd.
    Sovrum 2, , övre plan
    Master Bedroom med utgång till uteplats och tomt. Här finns även en helväggsgarderob med spegelskjutdörrar. Trälaminat på golvet och ljusa tapeter på väggarna.
    Sovrum 3, , övre plan
    Även detta ett rymligt sovrum med plats för det mesta. Laminatgolv och ljusa tapeter på väggarna.
    Badrum, , övre plan
    Rymligt badrum med stort fönster. Här finns idag wc, handfat, bidé och dusch. Matta på golvet och våtrumstapet på väggarna.
  • Byggnad
    Byggnadstyp
    1-plansvilla med källare i souterräng
    Byggnadsår
    1969
    Fasad
    Mexitegel och träpanel
    Stomme
    Trä
    Grundmur
    Lättbetong (blå)
    Fönster
    3-glas isoler. 2-glas kopplade
    Tak
    Betongpannor
    Uppvärmning
    2 st luft/luftvärmepumpar. Kombipanna el/olja (endast el används). Insatskamin.
    Renoveringar
    1984 Renovering kök, samt lackering av alla innerdörrar vit 1985 Renovering toalett uppe 1986 Tarkettgolv uppe, entréparti ombyggt med räcken osv 1987 Altanbygge, räcken, skärmtak osv samt målning 1989 Renovering sovrum 1989 Tilläggsisolering kallvind 1990 Utbyggnad Entré med räcken, staket byggdes mot närliggande granne 1991 Rivning vägg och ommålning överplan, samt parkettgolv i allrum. Gräsmatta utökning 1992 Utbyggnad garage, samt nytt plåttak och ändring till sadeltak. Diverse målningar på huset 1997 Inmurning av insatskamin samt marmorgolv framför öppna spisen. 1998 - Ny värmepanna 1998 - Ytskiktsrenovering tvättstuga (ej tätskikt) 2003 Nya trappor till altandörrarna. 2006 Nya termostater till samtliga element. 2006 Tak: Läkt, papp, pannor. Råspont lokalt ca 3 kvm. 2012/2013 Nya 3-glas Mockfjärds vita fönster i hela huset samt nya altandörrar. Nytt parkettgolv i sovrum, lister och målning. 2014 Fiberinstallation för bredband. Plåtklädnad runt murstock på taket, tvätt och byte av takfotsbräder samt målning. Lackering av trappräcke inomhus. 2015 Fortsättning av renovering av takfotsbräder/vindskivor samt ny fjällpanel på balkongsidan. 2018 Dränering (ej längs grund mot garage) 2018 Skrapning och ommålning av hela huset 2020 Målning av garage. 2022 2st luftvärmepumpar monteras, en uppe och en på nedervåningen. 2025 Ny låskista ytterdörr
    Ventilation
    Självdrag
    Vatten och avlopp
    Kommunalt vatten året om. Kommunalt avlopp
    Energideklarerades
    2025-10-30
    Energideklaration
    Utförd
    Energiprestanda
    62 kWh/m² (Atemp) och år
    Fastighetsbeteckning
    Arenberga 1:170
    Övrigt
    Fiber är installerat. Vattenburen uppvärmning. 2-glas fönstren är 2 st i källaren, resten är 3-glas.
  • Allmänt om fastigheten
    Upplåtelseform
    Friköpt
    Total Driftskostnad
    38 704 kr/år
    El: 25 904 KR
    Elförbrukning: 12591 kWh
    VA: 4 500 KR
    Försäkring: 7 000 KR
    Sotning: 1 300 KR
    Beräknat antal pers
    1
    Kommentar
    VA-kostnader innefattar även renhållning. El-kostnader innefattar även uppvärmning. Driftskostnader är individuella och baseras bl.a. på vilken förbrukning den boende har samt vilka avtal som finns med t.ex. el- och försäkringsbolag.
    Taxeringsvärde
    4 282 000 KR
    Summa pantbrev
    586 200 KR
  • Övriga Byggnader/Utrymmen
    Garage och förråd 32 kvm
  • Tomt
    Tomtyta
    779 KVM
    Övrigt
    Tomt i skyddat läge längs återvändsgata. På höjd vilket ger en häftig utsikt från husets övervåning. Tomten har både gräsmatta och rik växtlighet samt möjlighet till plantering.
    Uteplats
    Rymlig uteplats under tak med totalt tre utgångar från matrum, kök och sovrum. Här ryms större möblemang som sittgrupper och grill.
  • Rättigheter & Belastningar
    Planbestämmelser
    Stadsplan (1967-03-31)
  • Övrigt
    Uppgifter om fastigheten härrör huvudsakligen från säljaren och kontrolleras av fastighetsmäklaren endast om omständigheterna ger anledning till detta. Samtliga areauppgifter är baserade på säljarens information. Dessa uppgifter kan av olika skäl vara felaktiga. Den köpare som anser arean vara av betydelse för köpet bör därför vidta en uppmätning.
  • Närområde
    Allmänt om området
    Det fina Arenbergaområdet ligger centralt men ändå avsides från Märsta med närhet till skogsområden och öppna landskap. Här har man nära till skolor, förskolor, parker, lekplatser, fotbollsplaner och motionsspår. Promenadavstånd till Märsta Station med restauranger, närservice och ICA-Butik. Förskola/Skola I närheten finns förskolor och skolor. Förskolan Sätuna ligger på Södergatan. Förskolan Smedjan på Tallstigen. På Dragonvägen finns förskolan Kanonkullen som är en fristående förskola. Skutan och Norrbackaskolan ligger på Odensalavägen och Lyan (öppet dygnet runt) ligger på Ekorrevägen. Det finns två skolor i närheten, Sätunaskolan årskurs F-6. Norrbackaskolan årskurs F-6 och Arlandagymnasiet nås via buss från Märsta Station. För den sport- och fritidsintresserade finns flera idrottsplatser, fotbollsplaner och idrottshallar i Märsta och Sigtuna. Populära Midgårdsvallen är ett stort sportfält och har en badanläggning med SPA och ett utomhusbad som på vintern används för skridskoåkning. I Märsta och Sigtuna finns även ishall, ridklubb och golfbanor. Vid Märsta Station finns närservice, vård samt restauranger och café. Vid Märsta Centrum finns shopping, gym, restauranger, caféer och handelsplats med de större livsmedelsbutikerna. Sätuna Torg vid Märsta Station är just nu under renovering, och här planeras ett nytt torg med affärslokaler och en helt ny knutpunkt i centrala Märsta. En ny ICA-Butik är redan på plats.
    Kommunikation
    Längs Stationsgatan går bussar mot Märsta Station och Sigtuna. I området cirkulerar även vinkbussar. Från Märsta Station går bussar till Sigtuna och Arlanda. Från Märsta Station tar du dig till Stockholm på ca 20 minuter med SJ eller till Uppsala på samma tid. Det går även pendeltåg till Stockholm och Uppsala. Arlanda når du från Märsta Station på ca 16 min med buss eller ca 25 min med tåg.
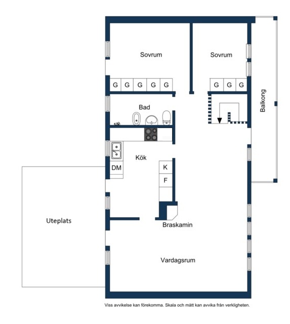
  • Planritning
    Entréplan
    Övre plan
    Entréplan alternativ planlösning
  • Karta
Utgångspris
4 295 000 KR

Visningar

Söndag 7/12 kl 14:05 - 14:35
Öppen visning, välkommen!

Visningsanmälan för

Fyll i dina uppgifter nedan så återkommer vi snart till dig.

Formuläret innehåller fel. Kontrollera formuläret och försök igen. Tack!

Tack för ditt meddelande!

Visningsanmälan

Intressesanmälan för

Fyll i dina uppgifter nedan så återkommer vi snart till dig.

Formuläret innehåller fel. Kontrollera formuläret och försök igen. Tack!

Tack för ditt meddelande!

Ansvarig mäklare

Intresserad av detta objekt?

Anmäl Intresse

  • AFI Fastighetsmäklare
  • Stationsgatan 3C nb, 195 47 Märsta
  • 08 - 591 275 45
  • info@afi.se

Fyll i dina uppgifter och skicka så återkommer vi!

Formuläret innehåller fel. Kontrollera formuläret och försök igen. Tack!

Tack för ditt meddelande!